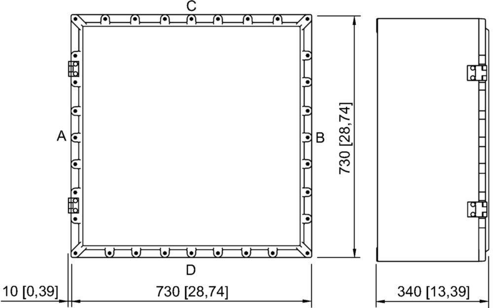
8264/5-SM-SS200kW400V-T, YD star-delta contactor combination, 200kW, Dimensions (W x H x D): 730,000 x 730,000 x 340,000 mm, Zone 1, 2, 21, 22
- Product Type: 8264/5-SM-SS200kW400V-T
- Art. No.: 143208
Technical data
General
| MY R. STAHL | 8264D |
| Product Type | 8264/5-SM-SS200kW400V-T |
| Product description | YD star-delta contactor combination |
| Highlights | Motor control units with international certificationRobust structure: Seawater-resistant enclosure, can be used in a large temperature rangeControl units: Direct-on-line motor starters (DOL), YD star-delta contactor combinations, reversing contactor combinations |
| Functional Description | R. STAHL Series 8264/5 "CUBEx" standard motor control units are installed in a seawater-resistant Ex d enclosure and are suitable for a large temperature range. They are available in various control versions. As an option, the control units can be fitted with main switches, control transformers, main and control fuses, and control and signalling devices as per the customer's requirements. |























