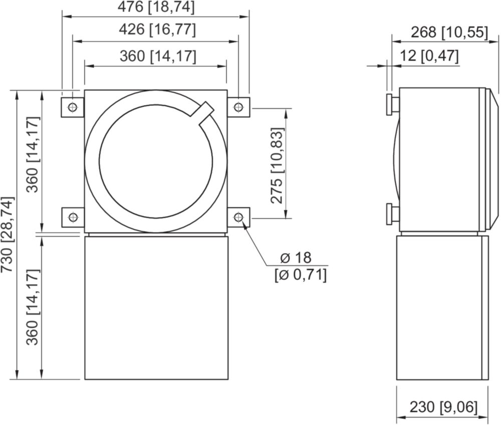
8220/5-SL-WS30kW400V-T, Reversing starter combination, 30kW, Dimensions (W x H x D): 360,000 x 360,000 x 268,000 mm, Zone 1, 2, 21, 22
- Product Type: 8220/5-SL-WS30kW400V-T
- Art. No.: 142464
Technical data
General
| MY R. STAHL | 8220A |
| Product Type | 8220/5-SL-WS30kW400V-T |
| Product description | Reversing starter combination |
| Highlights | Modular motor control units for all gas groupsControl units: Direct-on-line motor starters (DOL), YD star-delta contactor combinations, reversing contactor combinationsAs an option, they can be equipped with main switches, main fuses, and control and signalling devices depending on the customer's specific requirements |
| Functional Description | R. STAHL Series 8220 standard motor control units are installed in Ex d enclosures and have an Ex e connection chamber enclosure. They are available in various control versions for rapid delivery. As an option, the control units can be fitted with main switches, main fuses, and control and signalling devices as per the customer's requirements. |
Explosion Protection
Electrical Data
Ambient Conditions
Mechanical Data
Commercial data
Downloads
| Description | Document Type | Language | |
|---|---|---|---|
| Standard Motor Starters Series 8220 | Data Sheet |
![]() |
|
| Standard Motor Starters Series 8220 | Data Sheet |
![]() |
|
| Standard Motor Starters Series 8220 | Data Sheet |
![]() |
|
| Standard Motor Starters Series 8220 | Data Sheet |
![]() |
|
| Standard Motor Starters Series 8220 | Data Sheet |
![]() |
|
| Standard Motor Starters Series 8220 de-DE | Product Overview |
![]() |
|
| Standard Motor Starters Series 8220 en-GB | Product Overview |
![]() |
|
| Reversing starter combination - 8220/5-SL-WS30kW400V-T - 142464 - de-DE | Single Data Sheet |
![]() |
|
| Reversing starter combination - 8220/5-SL-WS30kW400V-T - 142464 - en-GB | Single Data Sheet |
![]() |
|
| Reversing starter combination - 8220/5-SL-WS30kW400V-T - 142464 - es-ES | Single Data Sheet |
![]() |
|
| Reversing starter combination - 8220/5-SL-WS30kW400V-T - 142464 - fr-FR | Single Data Sheet |
![]() |





















